Als die Idee geboren war, einen Flügel in einem Anhänger mit auf die Reise zu nehmen, stellte sich die Frage, „was, wie, wann, woher?“. Und wenn schon Anhänger, dann könnte man sich darin ja vielleicht auch noch eine Dusche und ein Klo für den Notfall einrichten?! Und zusätzlichen Platz kann man ja nicht genug haben – für vieles, was man unterwegs so braucht, vor allem technische Ausrüstung, Ersatzräder, Reservekanister für Kraftstoff und anderes mehr.
Also war klar, drei Räume sollte der Anhänger haben. Einen für den Flügel – hinten mit einer Rampe, über die man den Flügel einladen kann, einer großen Klappe an der einen Seite und einer Tür auf der anderen Seite, damit man die Klappe oder Rampe nicht immer öffnen muss, um zum Flügel zu kommen. Auch eine Seilwinde wäre gut, um den Flügel über die Rampe ziehen zu können. Und dann eben eine ‚Nasszelle‘ nebst Stauraum für das Equipment.
Aber wo kann man so einen Anhänger bekommen? Schnell war klar, dass es sowas kaum gebraucht zu kaufen gibt – zumal der Anhänger ja auch noch einige andere Eigenschaften haben musste, wie viel Bodenfreiheit für Geländefahrten, und natürlich müssen wir aufrecht darin stehen können, ohne dass der Anhänger wiederum zu hoch für die Container ist, in die man ihn zur Verschiffung verladen muss. Um den Flügel zu schützen, sollte der Anhänger beheizbar sein und brauchte hierfür eine ausreichende Isolierung. Und noch einiges anderes…
Also musste der Anhänger für uns ‚gebacken‘ werden. So machten wir uns auf die Suche nach einem geeigneten ‚Bäcker‘, das heißt, einem Anhängerhersteller, der unseren Sonderwunsch einigermaßen bezahlbar erfüllen konnte. Nach mehreren Gesprächen mit verschiedenen Firmen, deren Möglichkeiten, unsere Vorgaben zu erfüllen, aber eher begrenzt waren, kam plötzlich Connys Bruder Roland mit einer ganz kleinen Werbeanzeige der Firma Wörmann bei Dachau, die er aus einer Zeitung ausgeschnitten hatte. Nach einem Telefonat und einer Terminvereinbarung mit dem Chef war es an mir, einige detaillierte Zeichnungen anzufertigen, um unsere Vorstellungen zu konkretisieren.
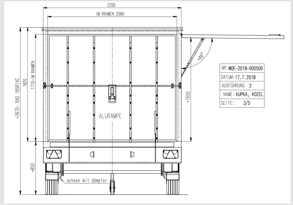
Nach weiteren Gesprächen mit dem Juniorchef der Firma Wörmann, bei denen die senkrechte Spitze sich schließlich in eine waagrechte Schräge verwandelte und außerdem der ganze Anhänger etwas größer wurde, sahen die finalen Pläne dann so aus:
Und ein paar Monate später konnten wir das gute Stück dann bei der Firma Wörmann abholen.

Jetzt geht die Arbeit für uns aber erst los. Dass der Anhänger nun fertig ist, heißt nicht, dass er schon weltreisebereit ist! Alles über die Außengestaltung und den Innenausbau des Anhängers findest du in den folgenden Beiträgen.
























